AU CAFE- BRASSERIE-PIZZERIA « UM TRAPENECK »
508, Route de Thionville
L-5886 Alzingen / Hesperange
Le mercredi 6 mai 2026 à 16 heures
Les propriétaires feront vendre publiquement au plus offrant par le ministère de Maître Karine REUTER, notaire à Luxembourg
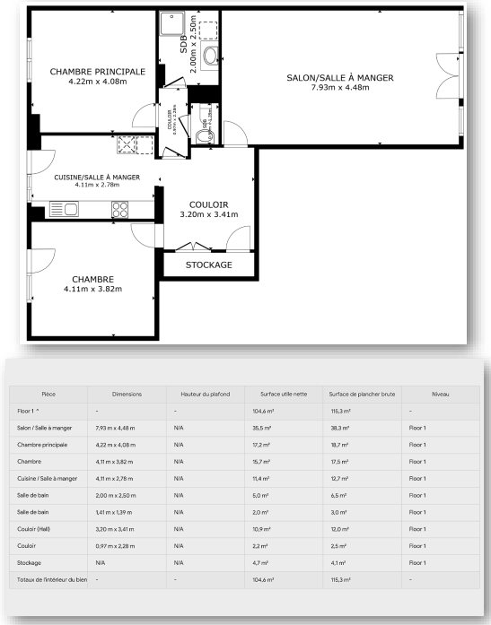
UN APPARTEMENT (spacieux +- 104m²) avec TERRASSE/BALCON et un GARAGE fermé
(classe de performance énergétique G et isolation thermique H)
Dans un immeuble en copropriété sis à L-1326 Luxembourg, 7 Rue Auguste Charles, dénommé « RESIDENCE LES DELICES » inscrit au Cadastre de la Commune de Luxembourg (ancienne Commune de Hollerich) Section HoB de Bonnevoie, sous lenuméro 647/9687, avec une contenance totale de 14,75 ares.
L’appartement B au 2e étage, comprend : hall d’entrée, salon- salle à manger, cuisine équipée avec balcon, deux chambres à coucher, une salle de bain, WC séparé, une cave, un garage, buanderie commune, Construction en 1974, chauffage à gaz,
Les visites auront lieu :
– les samedis 18.04. – 25.04. – 02.05.2026, chaque fois de 11.00 à 12.00 heures.
et le jour de la vente de 15.00 à 15.30 heures.
Photos disponibles sur le site : « www.notaire-reuter.lu »
Pour tout renseignement : notaire@notairereuter.lu
Les visites se font aux risques et périls des visiteurs et l’étude ne saurait être rendue responsable pour un quelconque accident sur les lieux.
« Les amateurs sont priés de se munir d’une garantie bancaire. »



Karine Reuter, Notaire
13-17 Grand-Rue, L-1661 Luxembourg
Tél. 28 66 68 – 1
